廚房配置

小弟不才,剛買了一棟舊的透天…因為翻修的金額有限,想請問各位大大該怎麼配置比較好呢,1F後方廚房有一組舊的廚具,想換中島型的廚房,後面那牆應該會打掉,2F主臥因為房間受限,樓梯及廁所不能動,但女王又想擁有一間更...
更多


想請大家幫忙看哪種配置及動線比較好?? 惠請大家提供建議~~格局的關係限制蠻多的,左邊的門是家裡大門,所以要避掉開門見灶及財庫(冰箱)還有目前還沒牽天然瓦斯,廚房最右邊要預留空間放桶裝瓦斯櫃子的部份 長的長30...
更多

請大家幫我看一下這是原本建設公司與廚具公司確認的圖基本上感覺這個空間有點閒置卡在一個廚房門和後院門所以原本感覺還蠻大的廚房只能做L型下面這個圖是我們比較想要的,就是有多一個中島台,不過我量過,這個中島台寬度可能...
更多

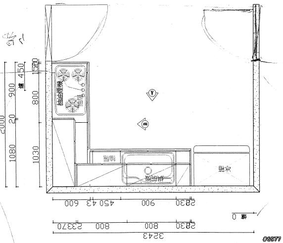
又來麻煩大家了新家的廚房說小不小, 但是也沒有大到可以塞下所有女人夢想中的美好玩具...家裡的兩個人廚藝很爛, 卻都喜歡擠在廚房裡摸東摸西亂搞一通,而且有人生肖屬松鼠, 性好囤物, 很需要多點儲物空間 所以希望...
更多