JessicaChien wrote:
假設我北面不開窗
那我那邊就不必退一米五的意思嗎?
我有問..
他說那是規定
倒是我沒問他如果整面不開窗是否可不用退一米五........
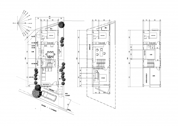
要開窗,就要與隔壁有1米5的防火隔間;不開窗,可以蓋到地界。你只要前面退3米就符合農變建的規定了
JessicaChien wrote:
廁所在樓梯下的構想
其實是我先生的意思
因為週遭我們親戚朋友的房子
廁所幾乎都在樓梯下方
說是節省空間....
我家有三個馬桶,其中一個就在樓梯下,結果這個馬桶最沒人氣,都快變成雜物間了
JessicaChien wrote:
我們前後臨路
兩邊沒有
前後臨路,如果都是合法車道的話,表示車可以放後院,從後方出入,會利用的話,這是很好的地啊!
坐東向西,西曬也不是壞事,善用光與熱,除了曬被子、太陽能外,給小朋友看書寫功課也比窩在房間用電燈照來的健康(把廚房餐桌放到西邊,也就是前門這邊,與客廳互換位置,你家大概不能接受。不然要比大器,是朋友進門看到到一台80吋的電視比較大器呢?還是家中女主人立刻端來一杯飲料比較大器?)

































































































