陳小美 wrote:
小弟本人是在北京工作...(恕刪)



真的是太氣派了!
It's really……really ……stunning…….
富麗堂皇!嘆為觀止!在此版看過有史以來最驚豔的私人住宅裝潢開箱文!可否請問這樣總花費大概需要花多少錢?
大大您好

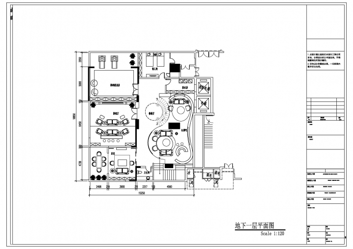
此區域是B1下去B2的過道

算是公共區域 品酒區 至B2 是藏酒區 或儲藏區

當時設計時 就把 1F-2F 設定為 家人 活動的地方

B1-B2 是朋友來交誼的空間

所以整體風格會比較酷 或冷洌一些!!

較突顯個性的一面 算是玩樂的地方

因為他的建築是分層的 並不是在同一平面上

所以每層樓 給的功能都不一樣 設計自然也會有所變化

您說的材質 是指樓梯間的地板嘛?

如果是 他是大理石材質

做完結晶的效果是較亮面

但並不會太滑!!

附上B1的平面佈區給您參考 此層基本都是社交活動 交際的空間


asiacat wrote:
這材質像是光面的,...(恕刪)


新人來此一遊~請大大多多照顧
大大您好

1 2 B1 B2 大約380坪


andy720125 wrote:
弱弱的請問大哥一下...(恕刪)
新人來此一遊~請大大多多照顧
這支樓梯

我個人也非常喜歡~


偉哥0831 wrote:
這個樓梯做的真的不...(恕刪)
新人來此一遊~請大大多多照顧
當時到現場看工地時

也被地下室的空間嚇到 心想....這空間 高度 也真的有點驚人

也思考了好久怎麼利用空間

圖片裡有一個集水區 是消防要用的

後來直接另開了一條通道 (消防檢修通道)

不然地下室可用空間 更大~
sroach wrote:
低調在哪裡?低到地...(恕刪)






新人來此一遊~請大大多多照顧

陳小美 wrote:
當時到現場看工地時
也被地下室的空間嚇到 心想....這空間 高度 也真的有點驚人
也思考了好久怎麼利用空間
圖片裡有一個集水區 是消防要用的
後來直接另開了一條通道 (消防檢修通道)
不然地下室可用空間 更大


那支樓梯的花紋真的很美

您真的很用心

希望有機會拜見您的其它大作
樓梯外的大理石是怎麼彎出來的啊? 好漂亮。
tenbura wrote:
那支樓梯的花紋真的很...(恕刪)
很符合大陸有錢人的口味,奢華至上的風格

一位台灣賣高級家具的友人也到上海去工作了
因為台灣生意很差,在上海如魚得水

那邊就是喜歡錦上添花+金碧輝煌的設計風格

這個IG帳號有很多樓梯設計都很不錯的,也是奢華風,但不會過於錦上添花

文章分享
評分
評分
複製連結

今日熱門文章 網友點擊推薦!