版上的各位大大,

附圖為修改後第二版之格局圖,因一樓預留採光井(預留電梯口)會將店面格局隔開,想請教版上達人,樓梯及電梯是否有更適當的擺放位置呢?樓梯走向是否有更好的方式?

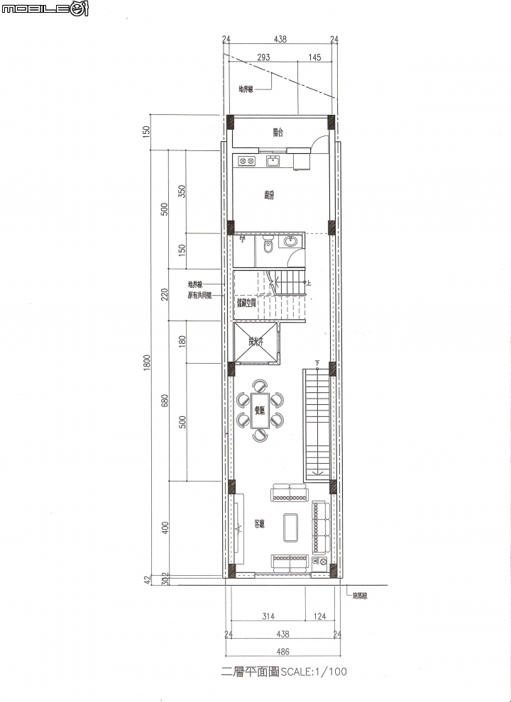
前面馬路為20米道路,故一、二樓預計規劃出租店面(二樓格局先規劃,但不施工),三&四樓出租或自住,預留採光井為未來增設電梯使用。
長型透天格局請益
長型透天格局請益
長型透天格局請益
長型透天格局請益
文章關鍵字
如果一二樓有預計要搞成店面

你那面寬僅4米多一點 算四米好了

如果你把樓梯硬擠在前面 店面剩三米 根本很難租

根本太小了, 就連未來不租了想變車庫也很難停車


不管店面要一二樓 還是只有一樓, 樓梯在門面就是很不實用

盡量都是往後移 像你照片的三四樓那樣
菜籃鈴 wrote:
版上的各位大大,

...(恕刪)

e-tron, 謝謝您的指教!

要租人的話,也是希望能店面跟住家隔個走道,這樣比較租的出去吧!
所以還是有要隔走道的考量。
未來不租人的話,也是收回自已當店面!
您的建議將納入考慮!
文章分享
評分
評分
複製連結

今日熱門文章 網友點擊推薦!