Survey好久的冷氣工程,終於定案,找的這家,當然要具備專業的工程能力,與高強的配合力,當然價錢一定是最後的最大競爭力。
首先他的報價內容,非常的細項,跟其他的比較,就是能讓我安心的地方
再來去了他其他的工地看看,確認是不是有跟他講的一樣,並且跟屋主聊個天,了解他們的服務如何
再來就是我最在意的全熱交換器的工法.......嗯嗯嗯~的確是領先群雄的專業性
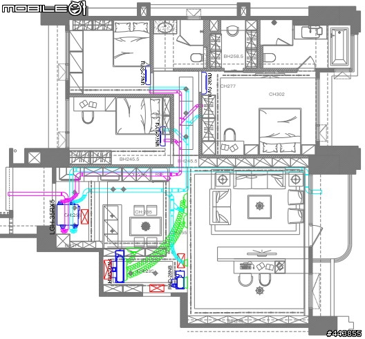
以下這張是我的配置
![[分享] 簡約溫馨夢想家進行曲~ 冷氣工程篇](http://attach.mobile01.com/attach/201303/mobile01-f93aece4708deb3b86ae2066e466ec18.jpg)
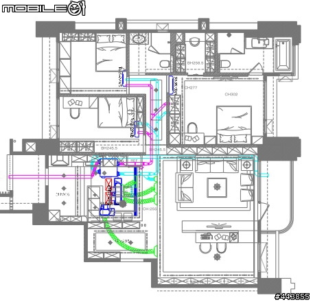
這張是與我設計師討論後的初步CAD圖,別意外,專業的就是要出圖^^
![[分享] 簡約溫馨夢想家進行曲~ 冷氣工程篇](http://attach.mobile01.com/attach/201303/mobile01-49ccc38fc4cddb3b01686688811e3885.jpg)
這張是我的期待,要求再調整
![[分享] 簡約溫馨夢想家進行曲~ 冷氣工程篇](http://attach.mobile01.com/attach/201303/mobile01-cf3de7650d09c7690d2f6403440e3d18.jpg)
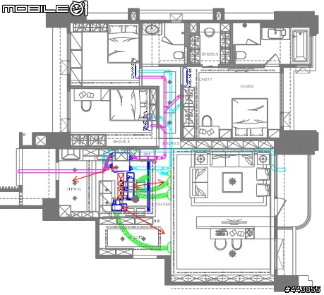
商議再商議,調整後的圖如下
![[分享] 簡約溫馨夢想家進行曲~ 冷氣工程篇](http://attach.mobile01.com/attach/201305/mobile01-9335bcc09e11e35f9a7964dd1afc8042.jpg)
-----------------------------------------------------------------------------
開始施工囉
第一天
材料與大型工具進場
![[分享] 簡約溫馨夢想家進行曲~ 冷氣工程篇](http://attach.mobile01.com/attach/201305/mobile01-fcb30978d76c3fd4f416a94147335212.jpg)
TOYO驗明正身
![[分享] 簡約溫馨夢想家進行曲~ 冷氣工程篇](http://attach.mobile01.com/attach/201305/mobile01-514ece092b44c123223c0c315671b564.jpg)
客廳與書房兩台吊隱式室內機進場
![[分享] 簡約溫馨夢想家進行曲~ 冷氣工程篇](http://attach.mobile01.com/attach/201305/mobile01-efc4f17f9f97dd0c77155654638e7c15.jpg)
洗洞(因應我的要求作的施工法,主要就是沒有冷氣盒這個凸出礙眼的東西)
![[分享] 簡約溫馨夢想家進行曲~ 冷氣工程篇](http://attach.mobile01.com/attach/201305/mobile01-788d6634fa0e89c05127a90227850b18.jpg)
工程離場的時候,嗯嗯,有乾淨

![[分享] 簡約溫馨夢想家進行曲~ 冷氣工程篇](http://attach.mobile01.com/attach/201305/mobile01-c55ebc910384be87b5bc58f2512f4004.jpg)
走線還蠻乾淨俐落整齊

![[分享] 簡約溫馨夢想家進行曲~ 冷氣工程篇](http://attach.mobile01.com/attach/201305/mobile01-d3aca0e1be9166a51a4b696aedf05879.jpg)
![[分享] 簡約溫馨夢想家進行曲~ 冷氣工程篇](http://attach.mobile01.com/attach/201305/mobile01-33c44711b03fdd938b77c891029f7098.jpg)
2013年很粗的電源線,安全保障不可少!(依照日立要求)
![[分享] 簡約溫馨夢想家進行曲~ 冷氣工程篇](http://attach.mobile01.com/attach/201305/mobile01-2b33a0d20151d30f020b75f84b217f76.jpg)
整齊,就是要整齊
![[分享] 簡約溫馨夢想家進行曲~ 冷氣工程篇](http://attach.mobile01.com/attach/201305/mobile01-376edd8739fc38d8ba394d7e17db322e.jpg)
第二天
三菱全熱交換器進場,希望可以帶給我新鮮好空氣

![[分享] 簡約溫馨夢想家進行曲~ 冷氣工程篇](http://attach.mobile01.com/attach/201305/mobile01-4da4dbf1d59cf5e2680f6d0f66330a97.jpg)
現場,東西慢慢變多囉,因為木工師傅也開始進來了解與交接囉

![[分享] 簡約溫馨夢想家進行曲~ 冷氣工程篇](http://attach.mobile01.com/attach/201305/mobile01-b0fad06eccdbe49586f0eefab7590e91.jpg)
師傅輕輕地敲著、慢慢磨著,目的是要把管子上油漆處理掉,避免管子銜接時密合的問題

![[分享] 簡約溫馨夢想家進行曲~ 冷氣工程篇](http://attach.mobile01.com/attach/201305/mobile01-ffbf93d4cabffa796d7da1cb6cfdd435.jpg)
釘子處理得很好,沒看到掉漆、裂痕、缺角(是我建商用料實在嗎?)

![[分享] 簡約溫馨夢想家進行曲~ 冷氣工程篇](http://attach.mobile01.com/attach/201305/mobile01-bee366259f9a88f2275eccc4cc730e30.jpg)
走線漂亮,還會有管子要進場.....熱鬧囉

![[分享] 簡約溫馨夢想家進行曲~ 冷氣工程篇](http://attach.mobile01.com/attach/201305/mobile01-c1064df69789c05bc6e7079673e55721.jpg)
準備進場的管子.....

![[分享] 簡約溫馨夢想家進行曲~ 冷氣工程篇](http://attach.mobile01.com/attach/201305/mobile01-41f975a7eeb1dd11a27cce65b886df57.jpg)
PVC管上架囉
![[分享] 簡約溫馨夢想家進行曲~ 冷氣工程篇](http://attach.mobile01.com/attach/201305/mobile01-ca051aadc8ae4d8c9b763fc49f56355a.jpg)
![[分享] 簡約溫馨夢想家進行曲~ 冷氣工程篇](http://attach.mobile01.com/attach/201305/mobile01-5baf9672e6c7bd965e69ac5cac9ce604.jpg)
冷氣排水特別包覆保溫材,避免結露現象產生

![[分享] 簡約溫馨夢想家進行曲~ 冷氣工程篇](http://attach.mobile01.com/attach/201305/mobile01-90c62ad824b860aa6ccb65eda5e1835d.jpg)
尼龍管的應用....好像是為了減緩風壓
![[分享] 簡約溫馨夢想家進行曲~ 冷氣工程篇](http://attach.mobile01.com/attach/201305/mobile01-05cf68d81a3a6f0ce7013d38266c017b.jpg)
有安設調節閥,之後會有專業機器的出風口風量測量,再細調

![[分享] 簡約溫馨夢想家進行曲~ 冷氣工程篇](http://attach.mobile01.com/attach/201305/mobile01-131bd0e436219b1cfd0064c84139f7ce.jpg)
全熱圓形出風口設計...還會有蓋子

![[分享] 簡約溫馨夢想家進行曲~ 冷氣工程篇](http://attach.mobile01.com/attach/201305/mobile01-31e39347759d1366937715fc728e3c35.jpg)
全熱線型盒出風口設計....

![[分享] 簡約溫馨夢想家進行曲~ 冷氣工程篇](http://attach.mobile01.com/attach/201305/mobile01-6264dbeed181c50f7c74fefa092dd326.jpg)
全熱與冷氣出風口

![[分享] 簡約溫馨夢想家進行曲~ 冷氣工程篇](http://attach.mobile01.com/attach/201305/mobile01-e8dc8c4d62b9431f855cd21df3983906.jpg)
保溫棉軟管,因為送出來的風是冷的,加上保溫才不會結露,跟排水一樣

![[分享] 簡約溫馨夢想家進行曲~ 冷氣工程篇](http://attach.mobile01.com/attach/201305/mobile01-dec2b3692987b623d5df6fdb229e361b.jpg)
全部的洞都用發泡劑填補起來,一般室內是不需要這樣啦,不過冷氣工程有幫我這樣處理

![[分享] 簡約溫馨夢想家進行曲~ 冷氣工程篇](http://attach.mobile01.com/attach/201305/mobile01-a14667a01f95ccab72f46be5eab8753b.jpg)
6/4 我的後陽台整線與保護線盒作好囉


![[分享] 簡約溫馨夢想家進行曲~ 冷氣工程篇](http://attach.mobile01.com/attach/201306/mobile01-73e9f53e5603663f22f70efd8be0fd6d.jpg)
我的室內機裝好囉,注意! 我的沒有突兀的冷氣盒

![[分享] 簡約溫馨夢想家進行曲~ 冷氣工程篇](http://attach.mobile01.com/attach/201306/mobile01-97ed0ce4e199a2989a10f7fb862bdc62.jpg)
辛苦拉線的師傅們





























































































