因為家中有四個人, 加上小弟習慣不好大號常常邊看手機...

To cougar2015:
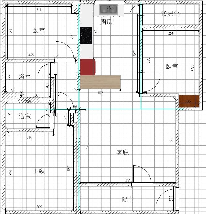
後來還是決定廁所不動了, 擠一點空間好像真的沒差別...又花錢 CP值太低了
To ScarleTAKE
恭喜!! 我們的格局真的很像

門對門我對風水比較沒那麼介意, 所以是覺得還好
我也覺得你的文章裡cinnamon coffee大大也說得有理, 空間不大了...還是實用動線為主吧
主臥不要有浴室是內人的要求,他認為洗澡的熱氣弄的房間到處都是
但我是覺得沒那麼誇張拉...但為了以後的幸福 改這種小地方還ok拉~

我的坪數是28.71, 我想我們兩個應該是差不多大才對喔~~
不知道你再改廚房位置有沒有遇到甚麼困難, 我們可以交流交流一下! 謝謝
最後附上目前規劃的, 補上家具就好像比較有感覺了




房間隨便亂擺 因為還不是重點
