union0 wrote:
樓主我覺得你改的不...(恕刪)
感謝U大的詳細回應~
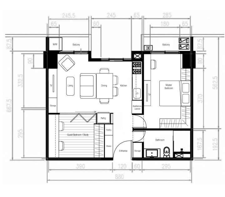
我原本就是在糾結客廳跟小房間的位置...
廚房的落地窗處原本也想設計L型流理台,只是不曉得這樣落地型但只有上開的窗戶,結果流理台擋位會不會採光就暗了許多
書房一定要有可以睡人的地方是我老媽要求的
,不然我早就把牆全打掉了...哈哈至於是要用沙發床或是正常的單人床其實都可以,主要都要能有收納的地方
進門處還是一定要有大量放鞋的鞋櫃(我是蜈蚣腳)...那就一定會變成走道啦...這好像比較難解決

書房隔間全用玻璃牆+落地窗簾也是我有考慮的地方!只是用玻璃的牆面處,好像就無法用插頭???
再次感謝U大的回應,受益良多!!



























































































