[開箱文] 自地自建 ~ 我和設計師的5口之家..1/28補一樓裝潢相片於文末和42頁 第31頁#304補上平面圖


tp168 wrote:
為何捨棄正面開窗...當然是為了隱私


本身也是同業這個觀點我非常的認同,但在不同的區域去做不同的設計這點我覺得是值得去思考的,在不考慮房子坐向~建地面積的大小~跟左右鄰房的相對關係下,在台灣人口密度高的城鎮中這種正面開窗的方式是比較沒有隱私,換成是我也會把採光需求設計到側邊或是跟公共過渡空間設計在一起。畢竟設計是主觀並無好與壞,設計規劃出來的符合自己的需求與喜好就是好的設計,感謝板大分享一家五口的心血結晶真的很精采。

tp168 wrote:
您好:
這個問題我很有興趣討論
為何捨棄正面開窗...當然是為了隱私


168大:
既然為了隱私為何要留在右邊而不是左邊,難道到<右舍>蓋的時間和大大的營造是同時期。
明年我也要自地自建,所採用也是這種"封"的概念。
台灣民眾真正能自地自建的非常少,就算有,能自己參與設計規畫的又是少之又少。

常看到很多建商或是自地自建的業主全交給建築師而不親自參與設計的房子,只知道通風採光,只知道用大面積的觀景窗,卻完全不去思考窗戶的設計是否適當。
最常見的就是有車庫的透天在自家車庫設置一個大型觀景窗,坐擁大片窗戶卻只能欣賞自家房車。
再不然就是大馬路邊用清玻璃,不僅無景可賞裡面還會被看光光。隨便走在路上都能看到一堆窗簾永不拉開的觀景窗。我就搞不太懂如果一扇窗的窗簾永不拉開那這扇窗一不通風二不採光那要它何用。

我是覺得在設計窗戶時首要思考的就是:當你從屋內往外看時,你期望能從這扇窗去看到什麼樣的光景?
鄰房的阿婆內褲?還是鄰房的鐵窗?還是鄰房堆積如山的垃圾?

窗外的景致如果可以的話當然有花有草有樹有美景是最好,但這樣的環境難找。所以為了不要看到窗外那些不好的景觀,最好的的方式就是改變格局,把窗依照功能擺在適當的位置。看出去就是一棵樹一個小庭園,這樣的景觀遠比直接看鄰房一些雜七雜八的景觀要來得舒服的多。

有些人會覺得透天厝要正面開大窗。問題是你正面有美景可賞嗎?沒有的話你開大窗做啥?只為了採光跟通風也不一定非得在正面開大窗,用百頁或推射式的一樣可以處理採光跟通風的問題。甚至還可加裝全熱交換器來24小時換氣,那通風的問題也可以被解決。剩下的採光也是可以用玻璃磚來做處理。

我覺得樓主這種設計是非常完善的一種設計,我最近在和建設公司老闆談也是談這種規畫方式。窗:要嘛不開,如果要開,那它就得發揮它的功能。觀景窗的一定要有景可賞(庭園設在內部),通風的就單純通風,採光的就單純採光,像傳統那種無意義的大面窗看出去就是雜亂街道或是鄰房屁股的設計我是不會讓它出現在我新建的房子當中~。
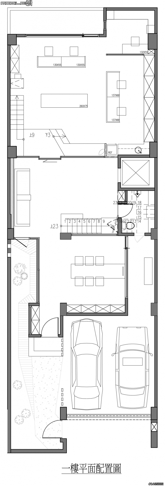
因為很多網友pm給我,希望分享平面圖和車庫照片
經過苦苦的哀求和威脅利誘
老婆終於同意我將車庫照片和平面圖po上網

先來張車庫

圖中有我們家的第二顆月亮燈...大圓
車庫的設計有點小,雖然放兩輛車沒問題,但機車腳踏車則沒辦法放很多
之所以如此設計都是為了讓老婆的設計公司有更大的使用空間

接下來是平面圖,有興趣者可作參考
一樓是車庫和老婆的設計公司,其中辦公室區有夾層設計,故一樓有兩張
空間配置幾乎沒改,裝修的部份則有一點點改變






如果我的同學找我去他家是這裡的話...我一定嚇到 下巴掉....
hhc0227 wrote:
168大:既然為了隱...(恕刪)

說到我們的痛點
我們完工後隔壁才開始蓋
沒想到大我們三倍的超級豪宅竟然轉90度
..............
真的是...人算不如天算

alexwuee wrote:
實在是太棒了!自己設...(恕刪)

謝謝誇獎
除了少數幾顆外,絕大部分是LED燈
平面圖..............好簡單的畫圖
沒有地板圖 沒有文字敘述這是廚房還是客廳?

有點小小混亂
我先吸收一下
tp168 wrote:
為何捨棄正面開窗...當然是為了隱私
老婆常說台灣目前的民宅建築喜歡正面開大面落地窗,表面光線通風良好,卻造福了窗簾業者
在街頭散步時,你會發現絕大部份的落地窗都是緊閉且拉上窗簾,實在可惜...
這種設計可保有隱私,也可以借由側面的大面窗或後面中庭的落地窗來保有光線和通風


真的有同感耶!

我特別喜歡老大房間的長型窗加上木百葉的設計,看起來採光仍然充足又能兼顧隱私,但不知道這樣子的長型窗戶是怎麼開窗的?通風效果如何?另外不曉得窗戶的座向,我私下在想,這樣子的狹長窗戶設計,如果能用在西曬牆上,會不會比大面開窗來得更加適合?

我家有棟老公寓,最近想要重新整修,因為這房子有西曬的問題,我一直在苦思各種可能的解決之道。西曬的房間過去把陽台打出去,夏天炎熱不堪也就罷了,房子老了,原本是陽台的地方又生外牆滲水的問題。我認真地在考慮要不要把陽台還原,重新砌內牆,然後用雙層窗的方式來處理西曬,但是看到樓主家的長型窗戶,突然覺得這說不定也是一種解決之道?請問這種窗戶是不是也有標準尺寸?有沒有牆高或牆壁厚度的限制呢?

又,那個有著落地百葉門的露台,真是棒極了,可惜身在台北的小小鴿子籠裡,室外落塵既重也毫無景觀可言,只能欣賞,不敢奢望XD
tp168 wrote:
說到我們的痛點我們完...(恕刪)

tp大,
印象中隔壁戶蓋起來好像是分成左右兩戶,
不過也還好您有預留空間作退縮,
況且預留空間那側印象中隔壁戶好像沒陽台或露台,
隱私來說應該是還不錯,
起碼不用兩戶隔空互望,
也算是美中不足之處啦.....(拍拍)

也謝謝您分享平面圖,
讓小弟能一窺內部設計規劃,
感謝.
好羨慕你們家的小孩,我可以當你們家的孩子嗎XD
文章分享
評分
評分
複製連結
請輸入您要前往的頁數(1 ~ 47)

今日熱門文章 網友點擊推薦!