請教裝潢隔間的建議與預算(附圖)


二房才有開窗,所以覺得客廳的採光不足,想說要不要把隔間打掉,
這樣子整間看起來較大而且亮。
其它的就在考慮衛浴是不是可以移位或是怎麼改風水比較好@@

天花板是輕鋼架,我們家只有230公分高,
如果折掉重做,我有看上面的管路很多,住久了也習慣不覺得壓迫。

@@以上,第一次發文請多指教
bookscats wrote:
二房才有開窗,所以覺...(恕刪)



大門入口在哪? 廚房比其他都還要大嗎?
大門入口就是圖示客廳那裡呀@@

廚房跟客廳沒有隔間,所以大不大......應該算小吧>"<

畢竟人要活動也要有一定的空間,所以大門關起來後活動比較方便,

@@這樣不知道算有回答你的問題嗎?


把門打掉,改成金屬烤漆框 + 強化玻璃
這樣最省,採光又好

你的廚具空間可能像相片一樣,
前面裝了拉門,也要留拉門的作業空間,另一側相對利用上會受限制
入口空間小了一點,也許上方裝輕型鋁捲門空間可以更好利用
http://www.fujisash.co.jp/hp/special/ecoam/eco_st.htm
有類似這種的小型捲門,聲音不大,面板也有很多樣式,包括玻璃
客牆臥室的牆可以像這樣與電視櫃結合 (這是來自香港建築刋物的相片)

要弄到這樣,十萬也許跑不掉;主要是工錢可能佔了一半
工錢都要看你能找到的工班決定
我之前有問過廁所改位的花費

光是"打掉+管線重設"就要七萬起...

還不含它的裝潢...

因為防水要重做 還有水管糞管那些都要仔細的接出來 (以免以後漏 水在封起來的牆裡)

聽到這個我就卻步了...太貴了~~~

另外二間房的門對開 還不是正對 是對一半
我記得有聽過以風水來說...這個比正對門還要不好~

建議你去書局翻一下裝修的書還有風水的講解
或許會更有概念一些
0.0......我買了之後只有人說開門對廁所不好,
沒想到連對半門也不好= =

滿腦子想著要裝潢什麼的 只有在看裝潢的書
倒是沒再想風水,我會再注意的,
也許等存夠了錢 0.0感覺好像整個格局都要改一樣

但是想不出該怎麼用 很謝謝回文的各位
都為我上了一課
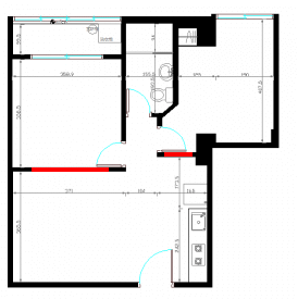
若只是要解決客廳的採光,把房間與客廳的隔間上方切個氣窗即可改善(下圖紅色)


這種方式必須房間沒把窗簾全拉起來,才能有些微透光,
窗要多高多大?是否擴及到門? 可自行衡量房間內的隱私、是否有衣廚擋住....
當然,隔間打掉也可以,只不過會變成客廳變大,少個房間...

除了開個間接採光的窗之外,房間的門毛玻璃+門上的玻璃框,同樣可以改善透光,
若純透光即可,切出的窗也不一定需要可開/關,
因為大多會裝冷氣,應該只要用只要用鋁框+玻璃密閉即可。

因為你的空間小,浴室和2個房間共用一個"走道動線",
門最好不要亂移,否則若改個門又要多留個走道動線,會浪費空間。
業代殺手,斷人財路!
文章分享
評分
評分
複製連結

今日熱門文章 網友點擊推薦!