
翻轉90度圖

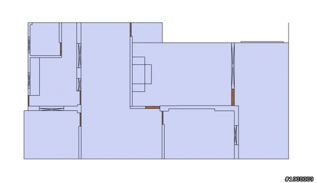
最後確認格局如下圖,

目前已進行裝潢,找A,B,C三位土水師父與D,E兩位設計師,地面原先為磨石子地如下圖(因家中圖片未轉存電腦故借轉網頁類似圖片),房間地區磨石子有小部份碎裂與20年前開挖衛生下水道故部份區域重舖水泥,預計全室拋光石英磚60X60,因室內現有地面高度較陽台外的馬路低,所以五位皆會以加高室內高度貼拋光石英磚。
原室內磨石子地


A師父:說要將磨石子地地面刨除,在用鐵條與網子(?)全室架高。
B師父:報價單”沒有”包含磨石子地地面刨除的費用,但未有後續故未細問磨石子地地面刨除後要用何種方式填高。
C師父:磨石子地很勇故無需將磨石子地面刨除,將以軟底施工方式墊在磨石子地上方,在以大理石方式貼拋光石英磚。
D設計師:報價單”有”包含磨石子地地面刨除的費用,但未有後續故未細問磨石子地地面刨除後要用何種方式填高。
E設計師:同D設計師,報價單”有”包含磨石子地地面刨除的費用,但未有後續故未細問磨石子地地面刨除後要用何種方式填高。
問題1:請問C師父的說法是否與常見工法有出入,抑或A師父說明較正確,還是有其他較正統的方式?
另原餐廳旁邊的空間想劃分一塊區域加作一間浴室,原舊水泥牆油漆面將會貼新貼磁磚,
A師父:原舊水泥牆油漆面會打到見紅磚塊,再重新補粗底貼新磁磚。
C師父:預計在原舊水泥牆油漆面以打貓方式施作,再貼新磁磚。
B,D,E三位未有後續故未細問。
問題2:請問C師父作法是否合適,抑或A師父說明較正確,還是有其他較正統的方式?
因為最早是找A師父來估價,故認知上述2問題會照A師父作法施作,但現行已請C師父進行統包的作業,但最初未確認到上述兩個問題,現與認知有所差異,所以上網發文詢問惡補,再請先進賜教,謝謝。
2011.07.22補充:
感謝各位先進專業與熱心的建議,為讓家人安心,並讓地面與天花版高度增加,和家人討論後的結論,2011.07.21晚上,仍請師父將磨石子地挖除,並將原水泥牆改作浴室磁磚牆牆面,由原本打毛方式改為打掉見紅磚。
工程進行到今天第五天,隔間紅磚已經疊起來,開始懷疑自己當初的動線設計是否有欠妥當,拒絕眾議而採用自己喜歡的師父,自己也開始在懷疑自己是否作對?蠻不踏實的,心慌慌,還是得面對與檢討。
敬祝
鈞安
ottowang敬上
2011.07.27補充:
工程進行到今天第九天,隔間紅磚已經疊起來,室內地板磨石子地已請師父刨除,室外前陽台師父說改天會再施作。
下班後到現場,發現地上還有三十幾年前衛生下水道工程留下的二個圓孔鐵蓋(直徑大約40公分,一個出口在主臥,一個出口在後堆陽台廚房門口),另有一個孔洞(大約30 CM X 20CM無孔蓋,僅用磁磚覆蓋),在後陽台的浴室。
圓孔蓋的附近水道有鐵條露出,下水道上方的地板有些許破洞。一看到這種情況頭都暈了~師父說他們有辦法處理,稍稍安慰我。
圖片有照下但是傳輸線材已搬到倉庫,我再想辦法將圖片上傳。
想再請問先進這樣的地板仍可以用軟底舖大理石方式貼60X60石英施釉磚嗎(想貼霧面的拋光磚)?抑或需要作何補償措施呢?
2011.08.02補充:
抱歉,想再和各位先進請教。
1.水電配線是走天花板,還是走地面呢?因為工班說要作天花板才可以藏線路,但我看有些人都是將弱電的線配在地面。
2.另原文章處於2011.07.27補充:
工程進行到今天第九天,隔間紅磚已經疊起來,室內地板磨石子地已請師父刨除,室外前陽台師父說改天會再施作。
下班後到現場,發現地上還有三十幾年前衛生下水道工程留下的二個圓孔鐵蓋(直徑大約40公分,一個出口在主臥,一個出口在後堆陽台廚房門口),另有一個孔洞(大約30 CM X 20CM無孔蓋,僅用磁磚覆蓋),在後陽台的浴室。
圓孔蓋的附近水道有鐵條露出,下水道上方的地板有些許破洞。一看到這種情況頭都暈了~師父說他們有辦法處理,稍稍安慰我。
臥室水溝圓孔圖





外推後陽台當廚房的水溝圓孔圖

外推後陽台當浴室的水溝孔圖-刨除磨石子地前

外推後陽台當浴室的水溝孔圖-刨除磨石子地後

想再請問先進這樣的地板仍可以用軟底舖大理石方式貼60X60石英施釉磚嗎(想貼霧面的拋光磚)?抑或需要作何補償措施呢?
3.工班說要在水溝蓋上覆蓋一層鐵網後,再灑七二石(?),接著舖水泥後,再用軟式濕工方式貼石英磚,水溝蓋的部份可以這樣處理就好呢,還是要整條敲掉後再重舖塑膠管,再填沙舖平呢?
4.請問1樓車庫部份原為水泥地,現要再貼磁磚,是要用打毛方式,還是水泥要打除見底重舖一層,還是要打除見底後再舖鐵條呢?
車庫地面圖



5.請教磨石子地板挖除後的地面如圖面,是否還需再打深呢?要打的話請問還需打多深?不知圖片中是否已是地面的RC層?
磨石子地刨除前地面圖

磨石子地刨除後地面圖


抱歉,因為不太懂,所以想再請教一次,謝謝!




























































































