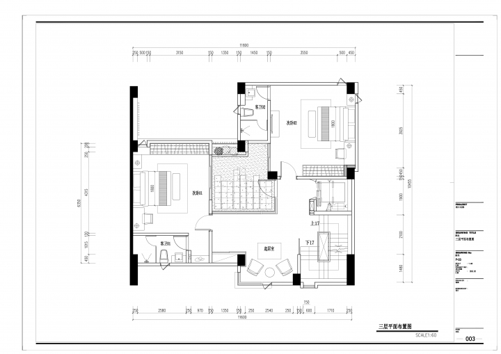
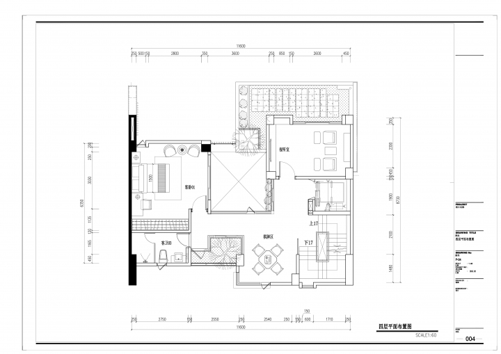
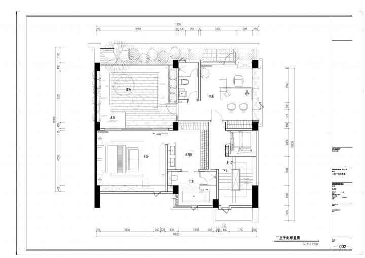
屋況:即將交屋 ,室內約100坪(面寬11.6米,深度12.6米)
家裡成員:夫妻+2個女孩(大的16歲在美國讀高中,小的15歲明年出國): 共4人
室內格局:4-5房6衛
喜歡風格:明亮舒適有隱私,客廳簡潔寬敞,環境多點綠化
目前的圖紙是參照建設公司畫冊及請我手底下的陸干深化,所以並沒有與設計師討論過也沒有決定立面的材質,因此我想可討論的空間應該還很大,還請各位前輩不吝賜教,感恩!
最後一張圖紙是我最近幾天的方案,主要是想讓2樓主卧室多點情境,所以動線繞了一下,但是需要多過2個門,不知各位前輩有無其他的動線方案,即能豐富又兼具簡潔呢?謝謝!

































































































