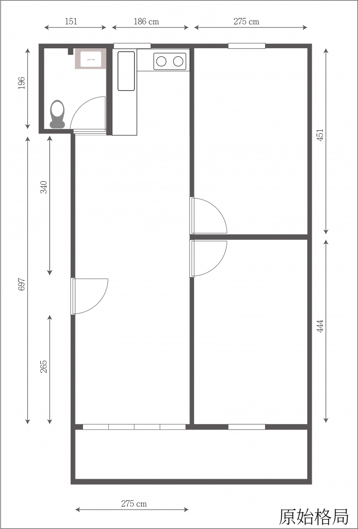
現有租屋空間不符合需求
預算有限下,小弟購入了小坪數老公寓要裝修,自行規畫了平面圖
原先的客廳空間太小,且沒有地方放置餐桌
小弟及賤內喜歡做菜,所以希望廚房空間增大,且要有餐桌
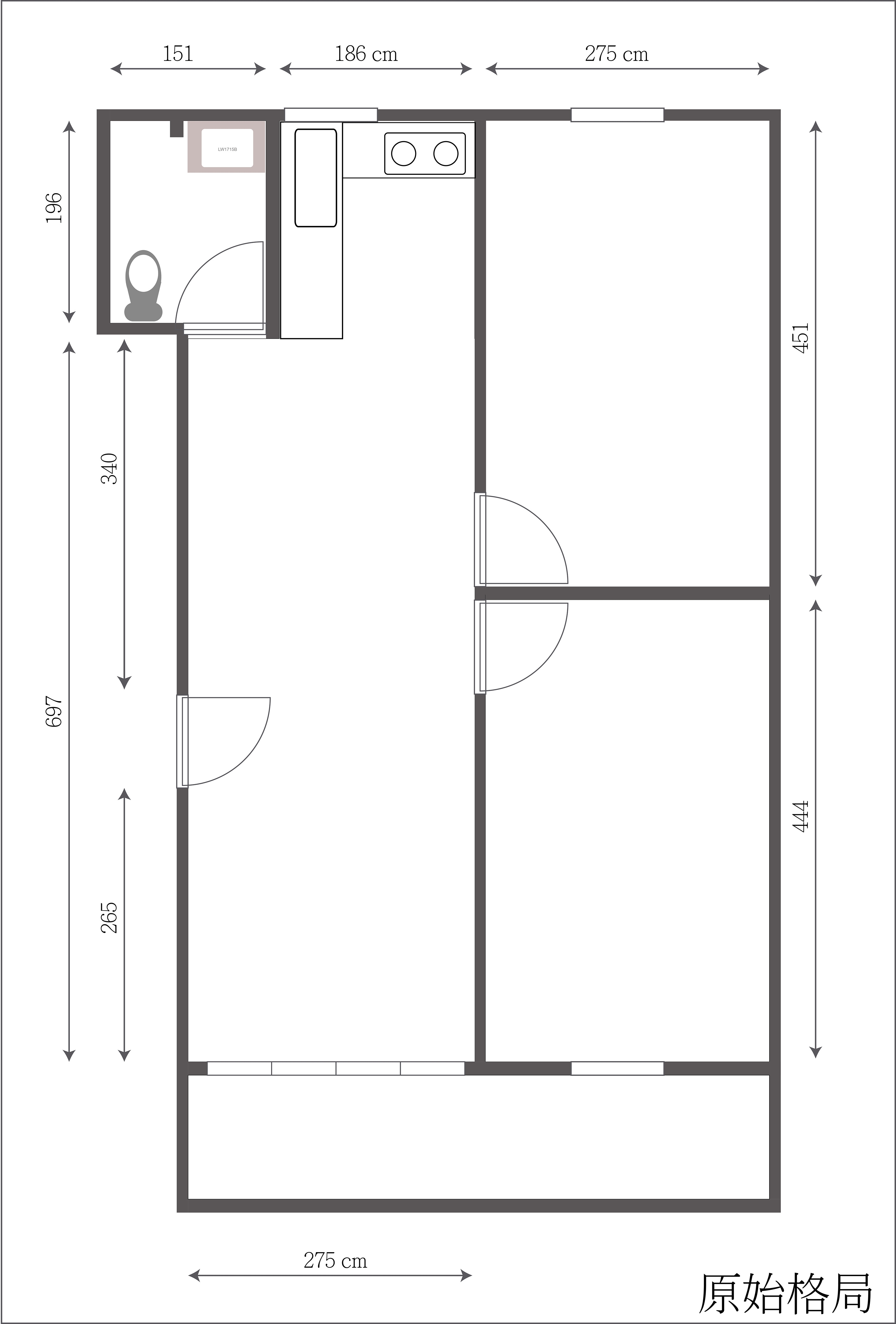
於是做了下列規畫
1.增大廚房/浴室/客廳尺寸
2.增加一衣櫃
3.增加餐桌區域
4.縮小房間尺寸
目前的平面圖是與賤內討論還算符合需求的規畫
但唯獨一點就是瓦斯爐對到了廁所門
賤內一直很在意這點(風水考量)
想請教各位前輩,是否有方法化解或者如何修正會更佳。
感謝各位前輩了
規畫格局
(橘色的圖塊是現有的家具。沙發/冰箱/洗衣機/餐桌,...等)

原本的格局

AI原始檔
https://drive.google.com/file/d/0B-iDg-M-ZS7JdnVVRHNXOFdLcDQ/view?usp=sharing





























































































