
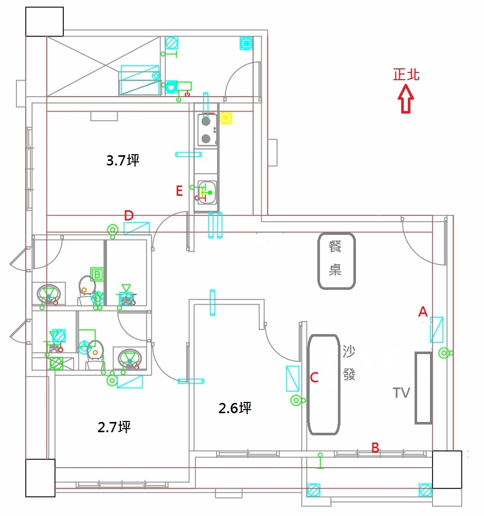
建商原本的冷氣孔位置有改過,目前開孔如圖
主要從後陽台經過廚房出來
2間小房間,我覺得位置還可以(有問題,請指正)
主要就是客廳和起居間(左上房間,目前規劃不放床)的冷氣位置難以決定
希望有其他的建議可以多參考
1.客廳:建商規劃的A 和常見位置的B,長度都有10米那麼長,
管線會拉太長嗎?而且轉彎的數量會不會太多?
C:管線短一點,可以開新孔和隔壁房間一起共用同個排水孔,但實用性?沙發正上方?
2.起居間:建商規劃的D,排水孔在大樑下,冷氣是要裝在樑上還是樑下阿?
樑下高度~240cm,裝樑下不會太壓迫太矮嗎?
室內機裝樑上,要木工包樑下,冷氣視覺上好像有點浮在空中,還是其實還好?
改到位置E,一進門的右側,好像是個離排水孔不遠的另一個選擇
3.冷氣配置目前有2個方案
第1案:客廳1台,其他3間1對3
第2案:客廳1台,起居室1台,其他2間放床的1對2
非睡覺的活動空間應該是客廳和起居間
起居間不睡覺,那間的窗是無遮避建物的西曬
目前是規畫洗澡、更衣還有收納的功能,再多的功能就是小朋友的玩樂間
太太有點猶豫這間可否先不要裝冷氣?
當然未來也還是有可能再當成一般主臥用。
4.排水孔延伸暗管,是冷氣師傅會挖會埋管,還是另找泥作和水電來?




























































































