最近買了間二手屋在裝修廚房,希望是開放式的,要有中島,平常也有在下廚,所以到時會再做一道玻璃拉門來隔絕油煙,目前設計師規劃成L型廚房外加一個大中島,如果像圖面這樣擺看起來會不會很壅擠?原本是摸字型,料理區比較大,但中島尺寸就比較小,冰箱旁就是玻璃拉門,後面是餐桌,原屋主留下的餐桌老公不想拆要沿用,想說用一有個中島,朋友多時才夠坐,中島功能目前是想拿來做烘焙跟朋友多時可當餐桌使用,這樣的中島尺寸配置不知道OK嗎?廚房中島配置問題 廚房中島配置問題 廚房中島配置問題 廚房中島配置問題

圖面上很擁擠 可以先用粉筆畫在地板上想像人多一點的時候廚房的動線會不會雍塞受影響

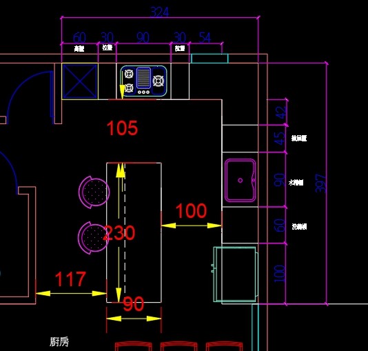
中島有要配置洗手台嗎 如果要二邊都可以坐人的話走道空間會有點窄
就圖片走道尺寸上看起來還OK
中島要坐人的那面可以看一下檯面與櫃子內縮的深度
之前在弄廚房時廠商是建議內縮抓20cm以上會比較好坐
當餐桌或是當烘焙用桌要確認一下高度適不適合
高度太低要當餐桌 椅子要買就要注意高度
如果要當烘焙桌就還是要抓一下自己適合的高度

建議可以去買捲和紙膠帶
直接在地上貼出中島/流理台/走道
貼出來後實際去走去坐就知道位置o不ok了
manest wrote:
圖面上很擁擠 可以先...(恕刪)


感謝建議🙏!
中島水槽目前也還在考慮要不要裝,要不就是只裝一個電陶爐就好。
astrodin wrote:
就圖片走道尺寸上看起...(恕刪)


感謝提醒😊
剛問設計師剛好就是預留20公分的放腳空間呢!👍
o872344449 wrote:
感謝提醒😊剛問設計...(恕刪)

二邊走道100 117 算夠用就是
https://www.google.com.tw/search?sxsrf=ACYBGNSHFuGdbxhM3H0IppFjSOLvTWZZ4g:1573635334164&q=%E4%B8%AD%E5%B3%B6%E9%80%A0%E5%9E%8B&tbm=isch&source=hp&hl=zh-TW&safe=active&sa=X&ved=2ahUKEwiGv-S46OblAhWOvZQKHR9YBd4Q7Al6BAgHEC8&biw=1280&bih=609

中島造型

文章分享
評分
評分
複製連結

今日熱門文章 網友點擊推薦!