
歷經努力看房以後,終於在今年也買入我們的第一間房子
40年的兩層樓雙拼老透天,地坪34坪(面寬約8米,深度約14米),採光通風都一級棒
即將開始整修的我們,卻因為一樓格局問題困擾了好久
(限於預算問題,無法找設計師QQ)
想來版上求救神人大大們,是否有好的建議
目前預計入住人數為2人,未來可能有小孩,無寵物
我們自己丈量、繪圖,初步配置了兩個方案:
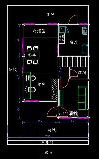
1. 方案一(客廳在前)

猶豫的點:
(1)入門就看見客廳會不會太壅擠
(2)沙發會有一角對到廁所(廁所會裝門簾)
(3)電視櫃會超出背牆,能走到廁所的寬度約剩70cm
(4)電視櫃旁邊放不下音響喇叭
2.方案二(客廳在後)(變更廚房門位置)

猶豫的點:
(1)把客廳放在後方較小的空間,在透天來說似乎是比較少見的格局,感覺起來會不會怪或有風水疑慮
(2)餐桌會有點對到廁所(廁所會裝門簾)
上述兩種方案不曉得大家覺得哪種比較好,實在困擾我們好久,
想知道版上各位大大的意見,若有別的想法也希望可以提點我們一下~謝謝!!!
ps.預計整棟大整修,房子周圍的牆是用混凝土灌漿,隔間為紅磚。