
2023年是我們夫妻人生密度最高的一年,找房買房、拍婚紗宴客結婚,老婆額外肩負大型活動業務,而我這邊則有家人健康微恙、毛小孩當天使,每一項單獨來看,都是年度重點的等級,卻命運般匯集在這一年。
在焦頭爛額之際,很慶幸遇到設計師成為最佳夥伴,在這緊湊的一年構建我們的家,即使已經入住兩年了,還是讓我們每天打開房門都讚嘆「我們的家好美啊~」
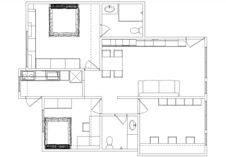
【改造前格局圖】

我們買的是20年左右的物件,基於對未來的家有很多美好想像,一股腦地與設計師現勘向他各種「許願」,例如視覺空間通透、收納多、採光要好、簡約線條木質美感、行走動線順暢、插頭位置就手、水路電路重拉、廁所翻新…,但其實是一直以來的做事習慣,工作上要求60分及格,會對自己要求100分,這樣才會努力達到超乎及格的80分,說到底畢竟20年物件的格局限制條件多,跟設計師初步討論後,已經做好「能夠70分覺得不錯了」的心理準備。
【改造後格局圖】

到了第二次討論時,懷著忐忑的心赴約,設計師直接中指扣住食指來個領域展開魔改空間,「居然還可以這樣改」,我們看到圖說第一時間互看一眼這樣想著。
設計師充分回應我們的許願,將客廳及書房之間的牆面拆除,改為有弧度、齊腰高度的木紋隔間系統板,以不影響書房機能為前提,客廳空間大幅拓展且視覺更通透,加上書房櫃體的簡約設計及收納空間,對空間至上的都市生活來說,充分實現許願自由,我們不是自由的奴隸,不是痛苦的艾倫,我們是自由的(吶喊)!!!。
【客廳從電視看書房改造前後圖】


【客廳從門口看次臥改造前後圖】


【客廳從窗戶看飯桌改造前後圖】


【客廳從飯桌看窗戶改造前後圖】


這邊必須提一下污衣櫃,基於私心希望家中空間視覺極大化,起初第一眼看到它心裡是排斥的,期間多次與設計師討論它的必要性,「畢竟還有書房及次臥的收納空間,污衣櫃有這麼重要嗎?卡在一個家中C位,很釘威(台語)耶」我這麼想著。
直到現在兩年過去,慶幸當初將設計師構想的污衣櫃保留下來,成為我們每天使用率最高的櫃體,除了主打的收納功能(避免老婆的衣服不斷從椅子長出來),也將餐廳與客廳的空間稍作分隔,甚至在書房稍微遮蔽視線得以專注閱讀,達到讓各個空間都有切換心情的作用。
至於所謂的極大化空間視覺,透過櫃體長度與設計的巧妙調整,兼顧我們所有的需求。
【書房面客廳改造前後圖】


我們喜歡淺色系無印風格的家,不過在整面白牆旁閱讀很像被關在土城,為了增添一點藝文氣息,跟設計師討論後,在書房牆面刷上飽和的莫蘭迪綠,聽著坂本龍一的Merry Christmas Mr. Lawrence,老婆就是這樣愛上我的(推眼鏡)。
【書房走道改造前後圖】


小當家老婆喜歡白淨風格的廚房,不過一片白略顯單調,老婆精心挑的六角磁磚,跳脫直橫線條,從雅致廚房燒出來的菜特別好吃~(謎之音:我都有幫忙備料喔!!)
【廚房改造前後圖】


接下來就是重頭戲主臥啦!!
延續書房的跳色思維,我們向設計師許願了一個耐看不單調、適合臥室放鬆氛圍、符合這個家整體設計的顏色,設計師挑了一些顏色讓我們選,最後擇定了雷諾瓦灰,看起來不是很灰,也沒有痛苦,只有美會留下。
值得一提的是,即使我們暫無育兒規劃,設計師與我們討論後,仍在極大化收納空間,且兼顧走道動線的動線外,悉心留置了床邊放置嬰兒床的空間,讓我們保留所有的可能性。
【主臥看床頭改造前後圖】


【主臥從浴室看窗改造前後圖】


【主臥從床頭看門改造前後圖】


【主臥從窗看浴室改造前後圖】


每天待很久時間的主臥及客臥浴室也改造得很美,尤其是主臥浴室鍛黑的乾濕分離金屬桿件,以及超好看的幾何磚,都是與設計師一件件討論、一件件到工廠現地挑出來的,每天洗澡跟體內環保心情都很舒爽~
【主臥浴室改造前後圖】


【客臥浴室改造前後圖】


看一些開箱房屋的影片,常常有最後悔的前幾項設計等等標題,回望這兩年生活下來,我們完全沒有一絲後悔,小如燈具開關、電器插座位置,大至收納空間、動線,在與設計師討論時都設想得非常就手,細緻且講究。
要將我們的美感偏好與理念融入裝潢,起初我是錙銖必較的,畢竟是一筆大費用,生怕設計師開高價讓我們當冤大頭,許多項目都細細查對,也經歷上述分享的討論過程逐漸累積信任感,到後來只要設計師LINE帳單來我就付,變成設計師唸我們不要太快付款要先驗收一下,事後想想也是有點不可思議,但信任就是建立在誠信(Integrity)之上才會這麼穩固吧,巴菲特說的那種,我想。
我們誠心推薦這位台中人兩寶爸裝潢設計師,希望對於中部地區有裝潢需求的大家能略盡棉薄之力!!
若有需要歡迎回文,我會抽空回覆唷































































































