原來真的是很狹長,這狹長的地,通當都是重劃區地主的回配地,
回配地通當是抽籤的,如果地主不賣很正常,因為可能還有其它的地
或是重劃時已拿到很多夠吃一輩子的財產了。
不過建商的團隊有想要用"以地易地"的方式整合土地嗎?
這樣地主仍保有土地,但給一些補償請地主向左向右移動,這不是很好嗎?
順便請建商付土增稅,這樣把土增稅的稅基移到這1,2年,不是很好嗎?
不然重劃後,十多年的土增稅也是不少錢。
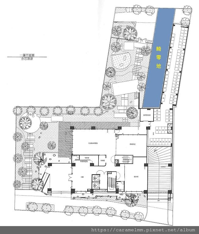
看了一樓公共空間的規劃,那個資源回收室(垃圾間),
就放在畸零地的尾巴,位置沒問題嗎?
因為一般大樓會放垃圾子母車,垃圾車來時,子母車是要推過中庭到馬路喔?

網路看到的格局圖
為提供您更優質的服務,本網站使用cookies。若您繼續瀏覽網頁,即表示您同意我們的cookies政策。 了解隱私權條款



























































































