把浴室納為主臥室的一部份你會比較好規劃!!

放膽去玩...把浴缸把到臥室區!

其實不失一種情趣!!

但整體工程要完整...而且業主要能接受...

林'r wrote:
把浴室納為主臥室的一...(恕刪)


讓我考慮到如果廁所管線不變``浴缸推到最前方`感覺應該視野會不錯

對於糞管向前移動的話
感覺會拉過一整個屋子
樓下天花板會穿過一條粗管
要不整個浴室前移應該會最好的方式
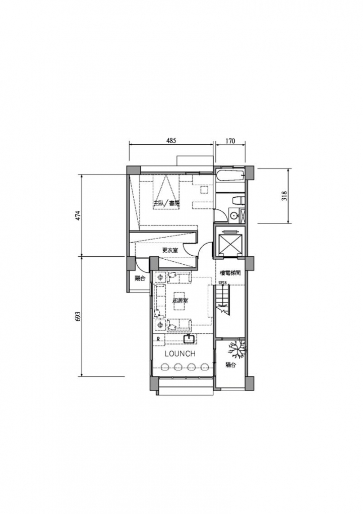
不知建照是否取得?相關室內空間建議如圖所示


blockquote>aluckkof wrote:
自地自建~~2樓為主...(恕刪)


zenith2000 wrote:
不知建照是否取得?相...(恕刪)



感謝提供

這也是不錯的規劃方式
但是想擴大浴室為主要目的
zenith2000 wrote:
不知建照是否取得?相...(恕刪)



重複`
刪除
文章分享
評分
評分
複製連結

今日熱門文章 網友點擊推薦!