1.這是要用來新婚的,小弟身高183,內人165,考慮睡Queen size或king size的床
2.客廳電視櫃在右邊,跟鞋櫃連成一器,感覺客廳空間比較開闊。如電視櫃至於左側將與其中一個設計案的主臥床靠太近,怕會打擾睡眠品質
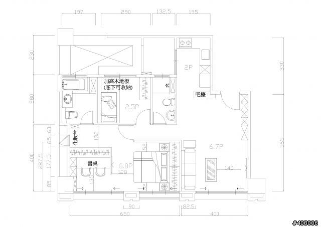
3.吧檯設置小小的,120*45cm,偶而朋友來喝個小酒或是晚上自己泡麵可在此享用,平常大部分都是在客廳用餐
4.客房目前暫當偶而朋友來住或是夫妻兩人的衣服不夠放時可置於此衣櫃
5.客房不知要不要設計書桌?如有,怕以後不知小孩在房內是否真有再用功。不然就是要在主臥的書房讀書,但是我們目前沒有生育計畫,就算有了小孩,到他需要用到書桌也要上了國小以後
6.大門不考慮放屏風,有請風水師看過,他說沒有穿堂煞,且用了屏風,客廳的感覺會沒這麼寬闊

優:
1.書房空間很大
劣:
1.主臥無法放電視(如要放電視,衣櫃勢必要縮小100公分左右)
2.主臥靠窗的走道僅58公分,還沒算到窗簾的空間(因床是Queen size)
3.化妝台設計在主臥的浴室

優:
1.書房空間剛好
2.主臥可放電視
3.化妝台設計在浴室門口的空間,化妝台前還有窗戶
4.衣櫃+收納櫃空間超多
5.客房多了床下的收納空間
劣:
1.主臥左右走道僅50公分,還沒算到窗簾的空間(因床是king size)






























































































