最近買了間中古屋 近期要裝修了,目前只有泥作確定其它東西都還沒確定....

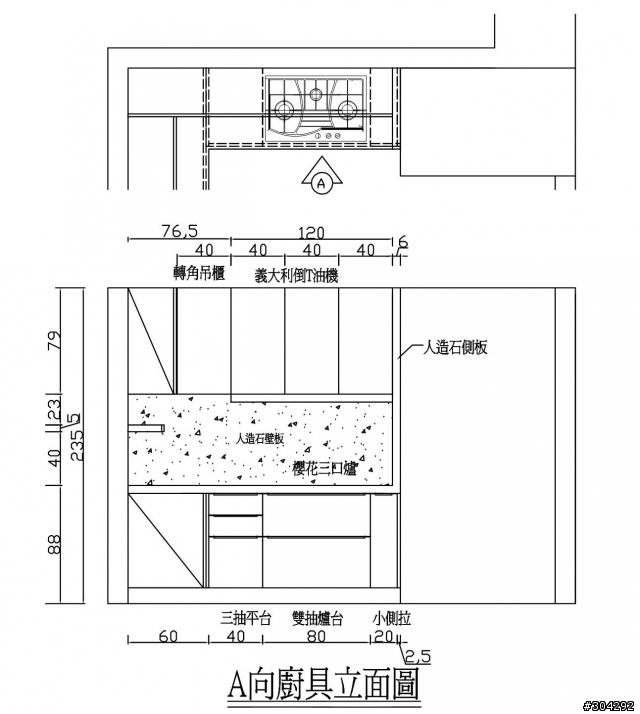
因為原廚房不大又長的很奇怪~目前我自己規劃如下


目前廠商初步報價5XXXX 最後再依現場狀況
櫃體、門板 吊櫃、下櫃、結晶鋼烤門板 215cm
檯面 三星人造石檯面 215cm
檯面崁入工資 一式
烘碗機 豪山-FW-8882臭氧殺菌烘碗機 X1
瓦斯爐 豪山-VEA-9019-01隱藏式排油煙機 X1
油機 豪山-ST-2172雙口st檯面爐 X1
水槽 690mm單槽 X1
龍頭 檯面龍頭 X1
鉸練 Blum鉸練 X12
不曉得以你專業角度,還有什麼可以改善空間~或在細節上要再注意的事項




































































































